






29 Days
1052
40
$41,500.00
Communications with the seller may be sent to KSL Cars, its service providers, and the dealer.
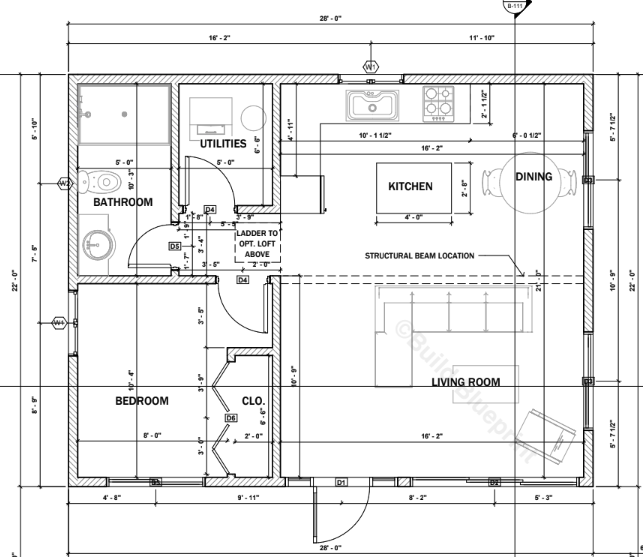
22' x 28' Steel-Framed ADU Kit – 616 sq ft with Loft
Create a high-end backyard home or rental with SteelBiltt’s precision-engineered Accessory Dwelling Unit (ADU) kit—built to outlast wood and designed for fast, simple assembly.
Key Features
Spacious Layout: 1 bed • 1 bath • full laundry room • vaulted ceilings • bonus loft space
Engineered Strength: Includes a stamped engineering plan set for permitting and peace of mind
Premium Envelope: Zip R3.6 insulated wall sheathing with standard Zip roof sheathing for superior air and moisture control
Complete Hardware Package: All hold-downs and hardware included
Fast, Panelized Construction: Wall and roof panels arrive pre-cut and labeled for quick on-site erection
Heavy-Duty Framing: 6" 18-gauge galvanized steel exterior walls and 3 5/8" interior framing
Why SteelBiltt
Rot, termite, and warp-resistant cold-formed steel
100% recyclable, low-maintenance materials
Non combustiable
Precision fit means less waste and faster build times
Flexible Build Options
DIY or Contractor Build: Order the panelized kit and assemble with your own crew.
SteelBiltt On-Site Construction: Our team can contract to build the ADU on your property.
Turn-Key Living: We can also price and deliver the entire above-ground build, giving you a ready-to-move-in ADU from framing through finishes.
See It in Person: A full steel frame model of this ADU is assembled in our facility and available for viewing—come experience the quality and precision first-hand.
See it in action: https://www.instagram.com/reel/DMMAuz6ysGZ/?utm_source=ig_web_copy_link&igsh=MzRlODBiNWFlZA==
Explore the Steel-Framed 3D Model: https://autode.sk/46li5Ru
Perfect for: backyard rental, guest house, or modern home office.
Explore more: www.steelbiltt.com
Contact SteelBiltt today for kit pricing, onsite construction, or a full turn-key ADU quote. Build smarter and stronger—with steel.
KSL Classifieds makes it easy to buy and sell with peace of mind. Check our safety tips and quickly report anything that doesn’t look right to keep your experience smooth and secure.
29 Days
1052
40
$41,500.00
Communications with the seller may be sent to KSL Cars, its service providers, and the dealer.
KSL Classifieds makes it easy to buy and sell with peace of mind. Check our safety tips and quickly report anything that doesn’t look right to keep your experience smooth and secure.







22' x 28' Steel-Framed ADU Kit – 616 sq ft with Loft
Create a high-end backyard home or rental with SteelBiltt’s precision-engineered Accessory Dwelling Unit (ADU) kit—built to outlast wood and designed for fast, simple assembly.
Key Features
Spacious Layout: 1 bed • 1 bath • full laundry room • vaulted ceilings • bonus loft space
Engineered Strength: Includes a stamped engineering plan set for permitting and peace of mind
Premium Envelope: Zip R3.6 insulated wall sheathing with standard Zip roof sheathing for superior air and moisture control
Complete Hardware Package: All hold-downs and hardware included
Fast, Panelized Construction: Wall and roof panels arrive pre-cut and labeled for quick on-site erection
Heavy-Duty Framing: 6" 18-gauge galvanized steel exterior walls and 3 5/8" interior framing
Why SteelBiltt
Rot, termite, and warp-resistant cold-formed steel
100% recyclable, low-maintenance materials
Non combustiable
Precision fit means less waste and faster build times
Flexible Build Options
DIY or Contractor Build: Order the panelized kit and assemble with your own crew.
SteelBiltt On-Site Construction: Our team can contract to build the ADU on your property.
Turn-Key Living: We can also price and deliver the entire above-ground build, giving you a ready-to-move-in ADU from framing through finishes.
See It in Person: A full steel frame model of this ADU is assembled in our facility and available for viewing—come experience the quality and precision first-hand.
See it in action: https://www.instagram.com/reel/DMMAuz6ysGZ/?utm_source=ig_web_copy_link&igsh=MzRlODBiNWFlZA==
Explore the Steel-Framed 3D Model: https://autode.sk/46li5Ru
Perfect for: backyard rental, guest house, or modern home office.
Explore more: www.steelbiltt.com
Contact SteelBiltt today for kit pricing, onsite construction, or a full turn-key ADU quote. Build smarter and stronger—with steel.