







































































15 Days
308
6
$84,997.00
This 75’ x 18’ Adonia Yacht is conveniently accessible through Antelope Point Marina, offering easy departure and return at Lake Powell. Share includes Trip 2 Annually(this year June 8th-14th). Also includes our share in ownership of two 2021 Sea Doo GTI 130 SE PWC Jet Skis which accompanies the houseboat week.
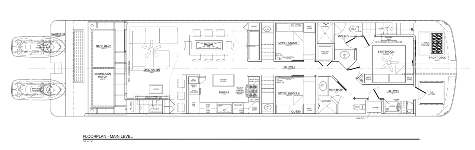
Key Features****5 Private Bedrooms
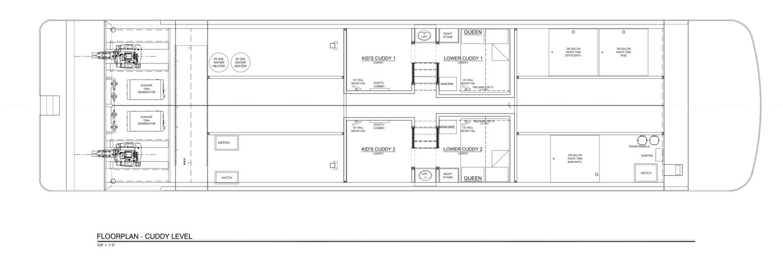
2 Kid Cuddies (perfect for children or extra guests)
3 Full Bathrooms
Twin 16 kW Diesel Generators
Twin Diesel 150 HP Engines
2 PWC (Jet Ski) Ramps
700-Gallon Fuel Capacity
250-Gallon Toy Tank
Back-Up Cameras for Easy Docking
Reverse Salon Design (maximizes views and space)
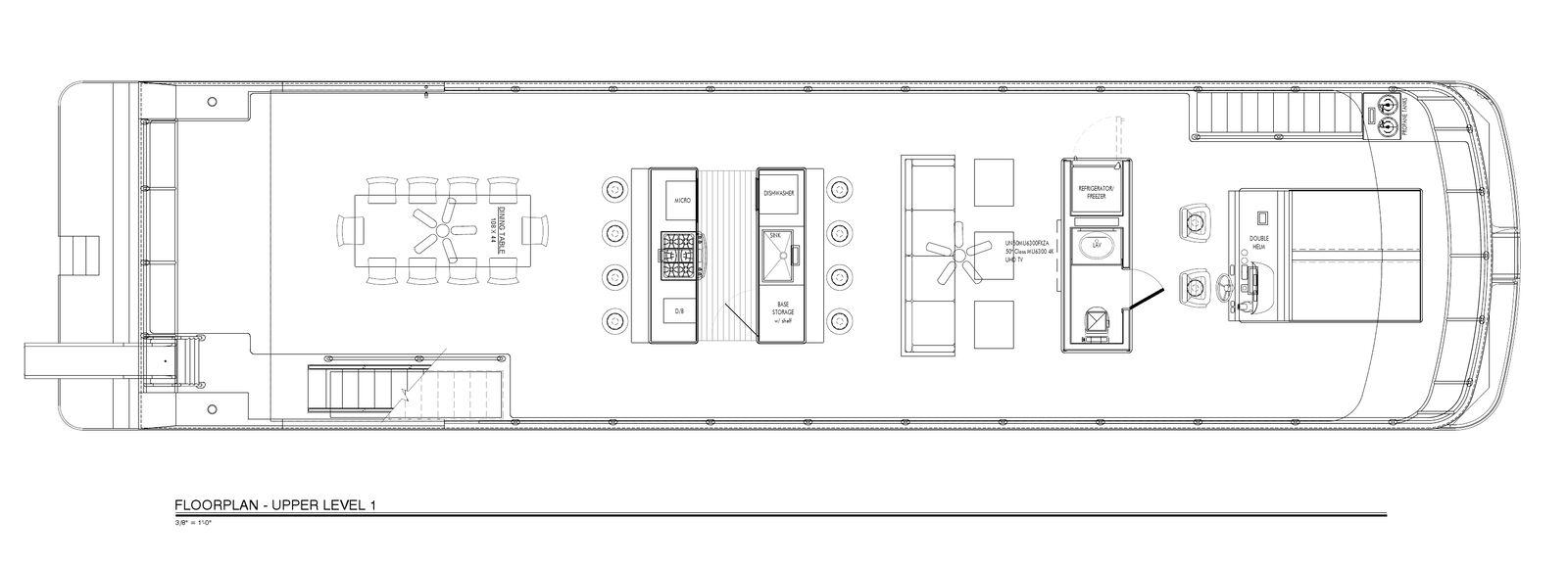
3rd-Level Sun Deck
Amenities
Deluxe Accommodations for 14 (Sleeping for 24 adults)
Central Air Conditioning & Heating
Complete Instrument Panel & Captain’s Chair
Upper Deck Sleeping Pad in front of Helm
Electronic & Navigational Equipment
2 Ship-to-Shore Marine Radios
2 Upper Deck Sofas w/8 Sleeping Pads
Intellian In-motion Self Tracking Satellite TV
Custom Entertainment Center with 60" HD/LED TV and Surround Sound System
Upper Deck Custom Sofa
Open Fly Bridge Design with Dual Seat Helm
LED TV/DVD Combo in Master Suite
Upper Deck Entertainment Center
Upper Deck Complete Helm & Controls
Running & Drive Lights
Spotlight
Upper Deck Hardtop Canopy with inset Lighting
Upper & Lower Safety Rail & Hardsides
Dual Bars with Sink, Dishwasher, Microwave, Range & (8) Barstools on Upper Deck
Upper Deck Bathroom "Pod" with Refrigerator/Freezer w/Ice Maker
Rear Deck Slide with Water Pump
(2) PWC Ramps w/Winches on back deck
Long Range Main Fuel Tanks (700 gal - Diesel)
Toy Tank with Electric Pump(250 gallons of gasoline)
Complete Galley with Service for 12
Custom Cabinets
Custom Granite Counter tops in Galley & Bathrooms
Coffee Maker/Toaster/Blender/Electric Skillet
Custom Designed Interior with Complete Furnishings
Full Carpeting Inside Cabin, Decks & Stairs
Private Master Suite with King Size Bed, under-bed storage and Full Bath
2 Private Upper -level Suites with Queen Size Beds
2 Private Cuddy Cabins with Queen Size Beds
2 "Kid's Cuddys" with Sunbrella pad and TV/DVD Combo
Custom Flooring in Galley and Baths
Custom Drapery and Tinted Windows
Custom Sectional Sofa in Front Salon
Outdoor Patio & Deck Furnishings
Tables/Chairs/Lounge Chairs
Front Deck BBQ Grill, Tank & Accessories
Full Extended Swim Platform
Customer Water Stairs
UVB Fresh Water Processing System
780 Gallon Holding Tank Capacity
Life Jackets & Safety Equipment
Anchors, Lines, Docking & Mooring Equipment
Below Deck Storage
Back-up Camera on Main Helm
Engines: Twin Diesel Mercruiser 150 HP with Bravo II Drives
2 Generators: Diesel Northern Lights 16KW
Battery System: 12V house system
4000 Watt Inverter with easy access hatch
Full-size Stainless Steel Range & Oven
Microwave & Dishwasher
66" Stainless Steel Refrigerator/Freezer Combo
Commercial Ice Maker in Galley
Trash Compactor
Washer/Dryer Combo
Back-up cameras on upper helm
Windlass Anchoring System
Front Deck & Upper Deck Screening (Black)
ack-up CamerasReverse Salon3rd Level Sun Deck
KSL Classifieds makes it easy to buy and sell with peace of mind. Check our safety tips and quickly report anything that doesn’t look right to keep your experience smooth and secure.












15 Days
308
6
$84,997.00
KSL Classifieds makes it easy to buy and sell with peace of mind. Check our safety tips and quickly report anything that doesn’t look right to keep your experience smooth and secure.








































































This 75’ x 18’ Adonia Yacht is conveniently accessible through Antelope Point Marina, offering easy departure and return at Lake Powell. Share includes Trip 2 Annually(this year June 8th-14th). Also includes our share in ownership of two 2021 Sea Doo GTI 130 SE PWC Jet Skis which accompanies the houseboat week.
Key Features****5 Private Bedrooms
2 Kid Cuddies (perfect for children or extra guests)
3 Full Bathrooms
Twin 16 kW Diesel Generators
Twin Diesel 150 HP Engines
2 PWC (Jet Ski) Ramps
700-Gallon Fuel Capacity
250-Gallon Toy Tank
Back-Up Cameras for Easy Docking
Reverse Salon Design (maximizes views and space)
3rd-Level Sun Deck
Amenities
Deluxe Accommodations for 14 (Sleeping for 24 adults)
Central Air Conditioning & Heating
Complete Instrument Panel & Captain’s Chair
Upper Deck Sleeping Pad in front of Helm
Electronic & Navigational Equipment
2 Ship-to-Shore Marine Radios
2 Upper Deck Sofas w/8 Sleeping Pads
Intellian In-motion Self Tracking Satellite TV
Custom Entertainment Center with 60" HD/LED TV and Surround Sound System
Upper Deck Custom Sofa
Open Fly Bridge Design with Dual Seat Helm
LED TV/DVD Combo in Master Suite
Upper Deck Entertainment Center
Upper Deck Complete Helm & Controls
Running & Drive Lights
Spotlight
Upper Deck Hardtop Canopy with inset Lighting
Upper & Lower Safety Rail & Hardsides
Dual Bars with Sink, Dishwasher, Microwave, Range & (8) Barstools on Upper Deck
Upper Deck Bathroom "Pod" with Refrigerator/Freezer w/Ice Maker
Rear Deck Slide with Water Pump
(2) PWC Ramps w/Winches on back deck
Long Range Main Fuel Tanks (700 gal - Diesel)
Toy Tank with Electric Pump(250 gallons of gasoline)
Complete Galley with Service for 12
Custom Cabinets
Custom Granite Counter tops in Galley & Bathrooms
Coffee Maker/Toaster/Blender/Electric Skillet
Custom Designed Interior with Complete Furnishings
Full Carpeting Inside Cabin, Decks & Stairs
Private Master Suite with King Size Bed, under-bed storage and Full Bath
2 Private Upper -level Suites with Queen Size Beds
2 Private Cuddy Cabins with Queen Size Beds
2 "Kid's Cuddys" with Sunbrella pad and TV/DVD Combo
Custom Flooring in Galley and Baths
Custom Drapery and Tinted Windows
Custom Sectional Sofa in Front Salon
Outdoor Patio & Deck Furnishings
Tables/Chairs/Lounge Chairs
Front Deck BBQ Grill, Tank & Accessories
Full Extended Swim Platform
Customer Water Stairs
UVB Fresh Water Processing System
780 Gallon Holding Tank Capacity
Life Jackets & Safety Equipment
Anchors, Lines, Docking & Mooring Equipment
Below Deck Storage
Back-up Camera on Main Helm
Engines: Twin Diesel Mercruiser 150 HP with Bravo II Drives
2 Generators: Diesel Northern Lights 16KW
Battery System: 12V house system
4000 Watt Inverter with easy access hatch
Full-size Stainless Steel Range & Oven
Microwave & Dishwasher
66" Stainless Steel Refrigerator/Freezer Combo
Commercial Ice Maker in Galley
Trash Compactor
Washer/Dryer Combo
Back-up cameras on upper helm
Windlass Anchoring System
Front Deck & Upper Deck Screening (Black)
ack-up CamerasReverse Salon3rd Level Sun Deck











