For Rent





















1 Day
171
2
$4,200.00/month

Note: KSL, its service providers, and the seller receive data from this message. See our Privacy Notice and TOU for details.
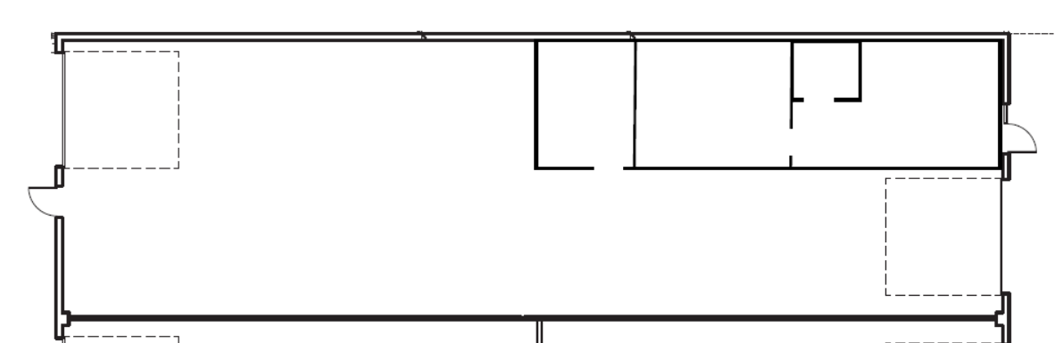
VenmoThis versatile commercial space features a primarily warehouse layout with a large office component, showroom/reception area, and an additional second office or storage space. The property is ideally located with excellent access to I-15 and Legacy Highway.
Property Highlights: • ±3,000 SF • Unloading dock access • 3-phase power • Two ground-level doors with drive-through capability • Quoted rate includes all CAM fees and property taxes; gas and electric are separate and paid by the tenant
KSL Classifieds makes it easy to buy and sell with peace of mind. Check our safety tips and quickly report anything that doesn’t look right to keep your experience smooth and secure.
1 Day
171
2
$4,200.00/month

Note: KSL, its service providers, and the seller receive data from this message. See our Privacy Notice and TOU for details.
KSL Classifieds makes it easy to buy and sell with peace of mind. Check our safety tips and quickly report anything that doesn’t look right to keep your experience smooth and secure.
For Rent





















VenmoThis versatile commercial space features a primarily warehouse layout with a large office component, showroom/reception area, and an additional second office or storage space. The property is ideally located with excellent access to I-15 and Legacy Highway.
Property Highlights: • ±3,000 SF • Unloading dock access • 3-phase power • Two ground-level doors with drive-through capability • Quoted rate includes all CAM fees and property taxes; gas and electric are separate and paid by the tenant