






















23 Days
77
0
$1,200,000.00
Note: KSL, its service providers, and the seller receive data from this message. See our Privacy Notice and TOU for details.
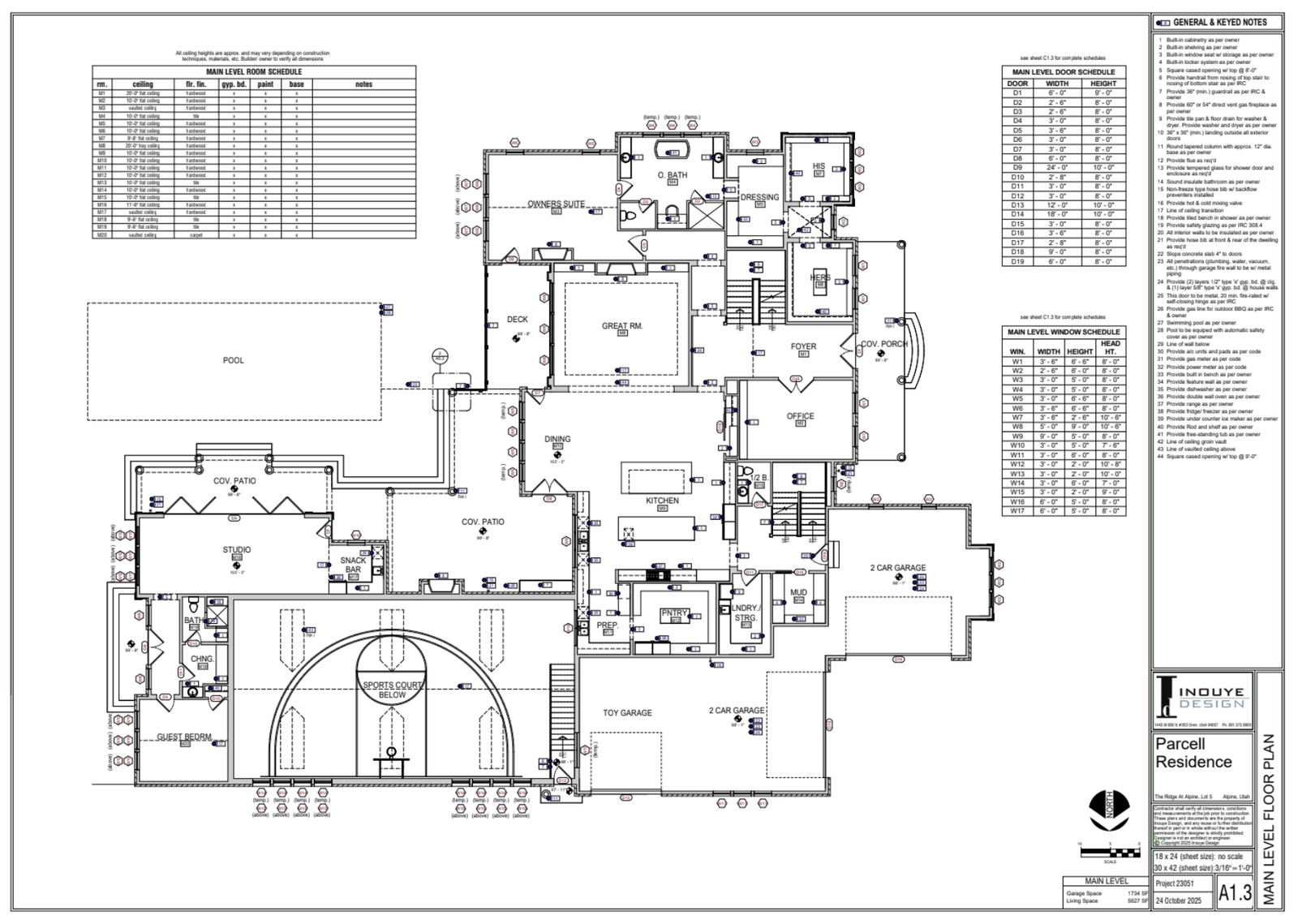
.69 acres on flat land in a gorgeous Alpine neighborhood called The Ridge. Homes behind are already built so this will be your backyard view. We have fully designed interior and exterior plans for a 14,000 sq ft living space house that are engineered included if interested. These plans include 6 bedrooms, basketball court, pool house with attached bedroom or studio depending on needs, home gym, sauna and ice bath, and theater. We also have fully designed landscape design. Contact Jenica at 817-999-6787 for inquiries.
Address of lot: 1664 N Dean Ct Alpine, UT 84004
KSL Classifieds makes it easy to buy and sell with peace of mind. Check our safety tips and quickly report anything that doesn’t look right to keep your experience smooth and secure.












23 Days
77
0
$1,200,000.00
Note: KSL, its service providers, and the seller receive data from this message. See our Privacy Notice and TOU for details.
KSL Classifieds makes it easy to buy and sell with peace of mind. Check our safety tips and quickly report anything that doesn’t look right to keep your experience smooth and secure.























.69 acres on flat land in a gorgeous Alpine neighborhood called The Ridge. Homes behind are already built so this will be your backyard view. We have fully designed interior and exterior plans for a 14,000 sq ft living space house that are engineered included if interested. These plans include 6 bedrooms, basketball court, pool house with attached bedroom or studio depending on needs, home gym, sauna and ice bath, and theater. We also have fully designed landscape design. Contact Jenica at 817-999-6787 for inquiries.
Address of lot: 1664 N Dean Ct Alpine, UT 84004











