For Rent
























19 Hours
5
0
$0.77/month
Note: KSL, its service providers, and the seller receive data from this message. See our Privacy Notice and TOU for details.
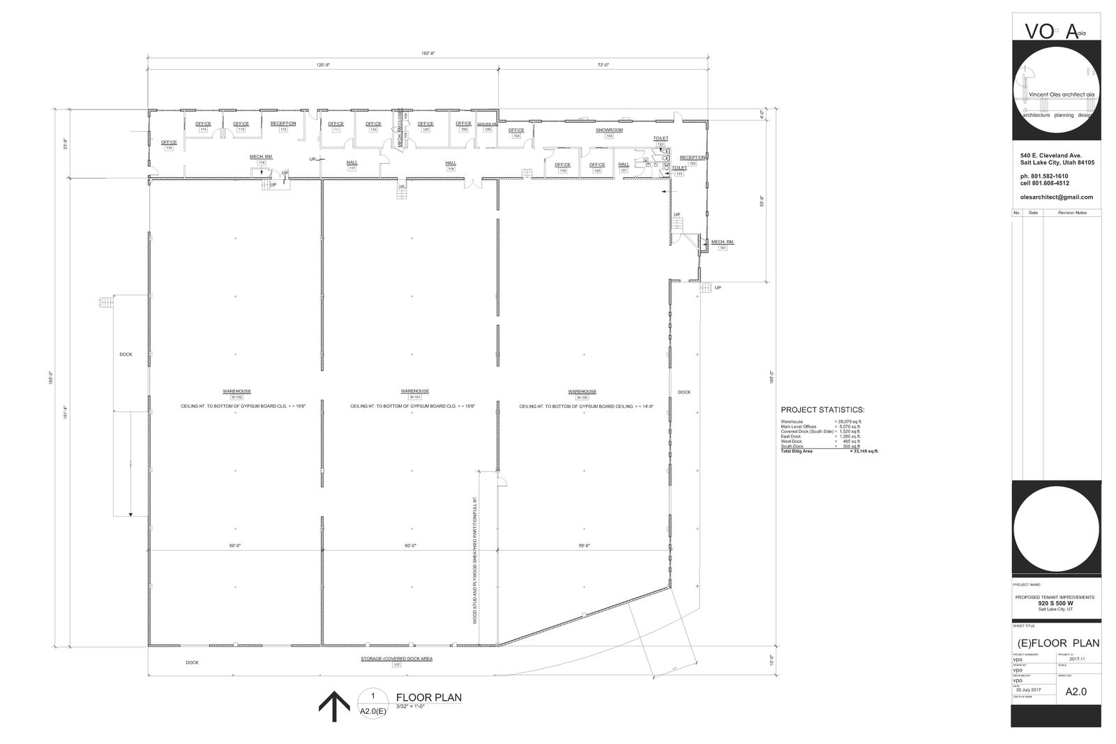
This warehouse is in a great location in downtown SLC Granary District. The space sits less than one minute from two freeway entrances and provides dock high loading. The space has been completely remodeled with new carpet and paint throughout and is ready for occupancy.
Specs are as follows:
(920 South 500 West)
23,730 SF
3,650 SF office
16,980 SF warehouse
3,100 SF of covered dock storage
(2) 12'x10' dock high overhead door
Rate is $0.77 psf, NNN and CAM's are $0.25 psf
Please call or email me to get more information and a brochure.
Call to schedule a tour of the space.
Thanks a lot,
Bob Mills
Licensed with Advent Property Advisors
(385) 988-6477
bob@adventut.com
KSL Classifieds makes it easy to buy and sell with peace of mind. Check our safety tips and quickly report anything that doesn’t look right to keep your experience smooth and secure.
Other items from this seller
19 Hours
5
0
$0.77/month
Note: KSL, its service providers, and the seller receive data from this message. See our Privacy Notice and TOU for details.
KSL Classifieds makes it easy to buy and sell with peace of mind. Check our safety tips and quickly report anything that doesn’t look right to keep your experience smooth and secure.
For Rent
























This warehouse is in a great location in downtown SLC Granary District. The space sits less than one minute from two freeway entrances and provides dock high loading. The space has been completely remodeled with new carpet and paint throughout and is ready for occupancy.
Specs are as follows:
(920 South 500 West)
23,730 SF
3,650 SF office
16,980 SF warehouse
3,100 SF of covered dock storage
(2) 12'x10' dock high overhead door
Rate is $0.77 psf, NNN and CAM's are $0.25 psf
Please call or email me to get more information and a brochure.
Call to schedule a tour of the space.
Thanks a lot,
Bob Mills
Licensed with Advent Property Advisors
(385) 988-6477
bob@adventut.com
Other items from this seller