For Rent







































1 Hour
3
0
$0.74/month
Note: KSL, its service providers, and the seller receive data from this message. See our Privacy Notice and TOU for details.
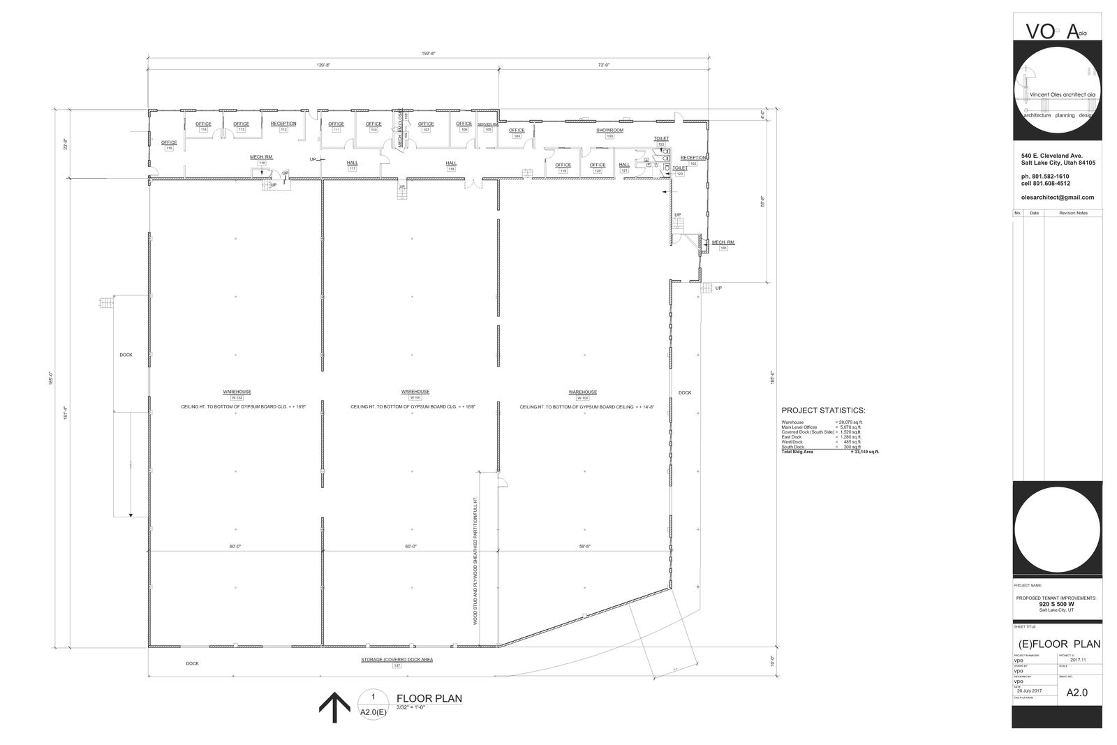
Rare opportunity to Lease 10,000 SF - 20,000 SF of warehouse space with your choice of 0.5 - 2 Acres of fully fenced and paved yard space in downtown SLC Granary District. This property is located directly off I-15 with great freeway access. The yard space is fully fenced with slatted fencing, brand new pavement, and large gates. The building is in great condition and will have fresh paint and carpet throughout. Specs are as follows:
(920 South 500 West)
10,000 SF - 20,000 SF
Rate is $0.74 psf, NNN for the building and $0.13 psf for the additional outside storage (rate for land may change if you take a smaller piece)
Please call or email me to get more information and a brochure.
Call to schedule a tour of the space.
Bob Mills
Licensed with Advent Property Advisors
(385) 988-6477
Bob@adventut.com
KSL Classifieds makes it easy to buy and sell with peace of mind. Check our safety tips and quickly report anything that doesn’t look right to keep your experience smooth and secure.
Other items from this seller
1 Hour
3
0
$0.74/month
Note: KSL, its service providers, and the seller receive data from this message. See our Privacy Notice and TOU for details.
KSL Classifieds makes it easy to buy and sell with peace of mind. Check our safety tips and quickly report anything that doesn’t look right to keep your experience smooth and secure.
For Rent







































Rare opportunity to Lease 10,000 SF - 20,000 SF of warehouse space with your choice of 0.5 - 2 Acres of fully fenced and paved yard space in downtown SLC Granary District. This property is located directly off I-15 with great freeway access. The yard space is fully fenced with slatted fencing, brand new pavement, and large gates. The building is in great condition and will have fresh paint and carpet throughout. Specs are as follows:
(920 South 500 West)
10,000 SF - 20,000 SF
Rate is $0.74 psf, NNN for the building and $0.13 psf for the additional outside storage (rate for land may change if you take a smaller piece)
Please call or email me to get more information and a brochure.
Call to schedule a tour of the space.
Bob Mills
Licensed with Advent Property Advisors
(385) 988-6477
Bob@adventut.com
Other items from this seller