























8 Days
589
37
$725,000.00
Note: KSL, its service providers, and the seller receive data from this message. See our Privacy Notice and TOU for details.
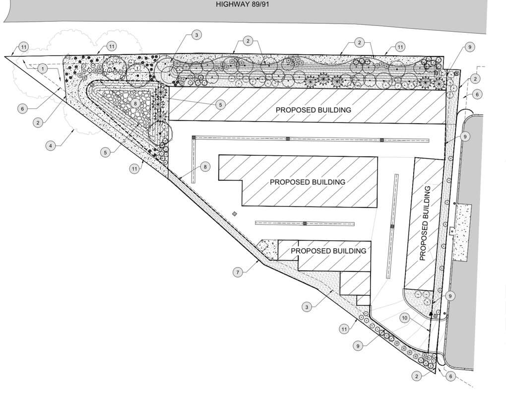
This is an approved (with conditions) new vehicle storage facility project, pending construction on a 2.4-acre commercial-zoned property. The facility is specifically permitted for commercial vehicle storage but not mini warehouse storage based on permitted use.
The project will feature approximately 33,892 square feet of rentable space across four separate buildings, with 78 units in total. The largest units will measure 40’x14’, with others sized at 35’x14’, 30’x12’ and 20’x12’. The site design ensures ample space for easy maneuvering, accommodating large RVs, boats, and trailers with a comfortable turning radius.
Most of the necessary reports have been completed, including survey, geotechnical, topographical, LiDAR topographical, flood plain analysis, and grading studies. Final concept drawings are ready but awaiting the last sign-offs. Construction plans are mostly complete, with a few adjustments being made, including the final location of the required fire hydrant and new required easements.
The site is located just south of the popular Maverik gas station on Highway 89 in Wellsville. Maverik’s large facility features an RV dump station, and the property benefits from excellent highway visibility and high traffic exposure. Cache County has restricted new storage facilities along major roads in the valley, but this project is grandfathered in for commercial vehicle storage, making it a rare opportunity.
The asking price is $725,000 for the approved project as reviewed by the planning commission. Additional details will be shared with verified, serious buyers. This is also a great candidate for a 1031 exchange. A due diligence period is welcome. Serious inquiries only, please.
KSL Classifieds makes it easy to buy and sell with peace of mind. Check our safety tips and quickly report anything that doesn’t look right to keep your experience smooth and secure.












8 Days
589
37
$725,000.00
Note: KSL, its service providers, and the seller receive data from this message. See our Privacy Notice and TOU for details.
KSL Classifieds makes it easy to buy and sell with peace of mind. Check our safety tips and quickly report anything that doesn’t look right to keep your experience smooth and secure.
























This is an approved (with conditions) new vehicle storage facility project, pending construction on a 2.4-acre commercial-zoned property. The facility is specifically permitted for commercial vehicle storage but not mini warehouse storage based on permitted use.
The project will feature approximately 33,892 square feet of rentable space across four separate buildings, with 78 units in total. The largest units will measure 40’x14’, with others sized at 35’x14’, 30’x12’ and 20’x12’. The site design ensures ample space for easy maneuvering, accommodating large RVs, boats, and trailers with a comfortable turning radius.
Most of the necessary reports have been completed, including survey, geotechnical, topographical, LiDAR topographical, flood plain analysis, and grading studies. Final concept drawings are ready but awaiting the last sign-offs. Construction plans are mostly complete, with a few adjustments being made, including the final location of the required fire hydrant and new required easements.
The site is located just south of the popular Maverik gas station on Highway 89 in Wellsville. Maverik’s large facility features an RV dump station, and the property benefits from excellent highway visibility and high traffic exposure. Cache County has restricted new storage facilities along major roads in the valley, but this project is grandfathered in for commercial vehicle storage, making it a rare opportunity.
The asking price is $725,000 for the approved project as reviewed by the planning commission. Additional details will be shared with verified, serious buyers. This is also a great candidate for a 1031 exchange. A due diligence period is welcome. Serious inquiries only, please.











