


14 Days
228
3
$9,999.99
Stardust 72x16. Week runs Sunday to Sunday. Annual Maintenance Fee: ~3,000 Bullfrog Marina
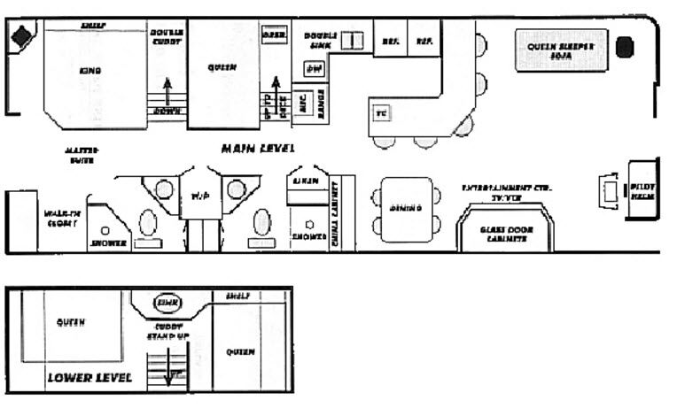
Accommodations One master suite with King bed and three private suites with Queen beds Queen Sofa-Sleeper in Front Salon Deluxe Accommodations for 10 (Sleeping Accommodations for 18 Adults using upper deck pads) Two full bathrooms each with head and shower Complete Galley with Service for 12 including Coffee maker/Toaster/Blender Custom Cabinets and Tile Flooring in Galley Full-Size Range & Oven Microwave, Dishwasher & Trash Compactor operating full time off inverted battery system Full size Refrigerator/Freezer with Ice-Maker in Galley installed in 2006 operating full time off inverted battery system Full-Size Chest Freezer on Front Deck operating full time off inverted battery system Ice Maker Custom Designed Interior with Complete Furnishings with Custom Drapery and Tinted Windows Full LVT Inside Cabin Central Air Conditioning CD Stereo System with 6 CD Exchanger and speakers with control throughout the boat and on the upper deck. Custom Entertainment Center with 27 TV Upper Deck Stationary Canopy with Dimable Rope Lighting Upper & Lower Safety Rails & Canvas Rear Deck Slippery Slide with Water Pump Jet-Ski Davit & Hoist with 950 lb capacity Outdoor Patio & Deck Furnishings with Tables/Chairs/Lounge Chairs on upper deck Front Deck Bar-B-Que Grill, Tank & Accessories Full 3 foot Extended Swim Platform Swim Ladder & Boarding Ramps Internally wired 12 volt Carbon Monoxide Detection System Below Deck Storage 12 Solar panels to charge batteries
Navigation Controls & Complete Instrument Panel located in Starboard Front Parlor Upper Deck Complete Fly-Bridge & Controls Microcommander Electronic Controls in both locations Electronic & Navigational Equipment Ship to Shore Marine Radio in both locations Running & Drive Lights Front and Rear Spotlights Anchors, Lines, Docking & Mooring Equipment
Capacities Long Range Fuel Tanks (234 gal.) Two Auxiliary (Toy) Gas Tank with Electric Pumps 120 gal and 100 gal - 220 gal total 200 Gallon Fresh Water Capacity 200 Gallon Holding Tank Capacity
Mechanical ENGINES: Twin 350CI fuel injected - 325 HP Mercruiser V8'. Replaced in 2008, new outdrives 2023 GENERATOR: 15.0 KW Westerbeke replaced in 2017 INVERTER SYSTEM: Fully inverted electrical system with Outback inverter and premium gel cell batteries (new in 2025) permitting all appliances to be operated without the generator running except the A/C system. Running the generator charges the batteries, runs the A/C system and provides 120v AC power throughout the boat.
KSL Classifieds makes it easy to buy and sell with peace of mind. Check our safety tips and quickly report anything that doesn’t look right to keep your experience smooth and secure.









14 Days
228
3
$9,999.99
KSL Classifieds makes it easy to buy and sell with peace of mind. Check our safety tips and quickly report anything that doesn’t look right to keep your experience smooth and secure.



Stardust 72x16. Week runs Sunday to Sunday. Annual Maintenance Fee: ~3,000 Bullfrog Marina
Accommodations One master suite with King bed and three private suites with Queen beds Queen Sofa-Sleeper in Front Salon Deluxe Accommodations for 10 (Sleeping Accommodations for 18 Adults using upper deck pads) Two full bathrooms each with head and shower Complete Galley with Service for 12 including Coffee maker/Toaster/Blender Custom Cabinets and Tile Flooring in Galley Full-Size Range & Oven Microwave, Dishwasher & Trash Compactor operating full time off inverted battery system Full size Refrigerator/Freezer with Ice-Maker in Galley installed in 2006 operating full time off inverted battery system Full-Size Chest Freezer on Front Deck operating full time off inverted battery system Ice Maker Custom Designed Interior with Complete Furnishings with Custom Drapery and Tinted Windows Full LVT Inside Cabin Central Air Conditioning CD Stereo System with 6 CD Exchanger and speakers with control throughout the boat and on the upper deck. Custom Entertainment Center with 27 TV Upper Deck Stationary Canopy with Dimable Rope Lighting Upper & Lower Safety Rails & Canvas Rear Deck Slippery Slide with Water Pump Jet-Ski Davit & Hoist with 950 lb capacity Outdoor Patio & Deck Furnishings with Tables/Chairs/Lounge Chairs on upper deck Front Deck Bar-B-Que Grill, Tank & Accessories Full 3 foot Extended Swim Platform Swim Ladder & Boarding Ramps Internally wired 12 volt Carbon Monoxide Detection System Below Deck Storage 12 Solar panels to charge batteries
Navigation Controls & Complete Instrument Panel located in Starboard Front Parlor Upper Deck Complete Fly-Bridge & Controls Microcommander Electronic Controls in both locations Electronic & Navigational Equipment Ship to Shore Marine Radio in both locations Running & Drive Lights Front and Rear Spotlights Anchors, Lines, Docking & Mooring Equipment
Capacities Long Range Fuel Tanks (234 gal.) Two Auxiliary (Toy) Gas Tank with Electric Pumps 120 gal and 100 gal - 220 gal total 200 Gallon Fresh Water Capacity 200 Gallon Holding Tank Capacity
Mechanical ENGINES: Twin 350CI fuel injected - 325 HP Mercruiser V8'. Replaced in 2008, new outdrives 2023 GENERATOR: 15.0 KW Westerbeke replaced in 2017 INVERTER SYSTEM: Fully inverted electrical system with Outback inverter and premium gel cell batteries (new in 2025) permitting all appliances to be operated without the generator running except the A/C system. Running the generator charges the batteries, runs the A/C system and provides 120v AC power throughout the boat.








