







































































11 Days
39
0
$14.50

Note: KSL, its service providers, and the seller receive data from this message. See our Privacy Notice and TOU for details.
$14.50/SF/YR | Office | 1 space available | 1,320 SqFt
1673 W 2650 S, Ogden, UT 84401
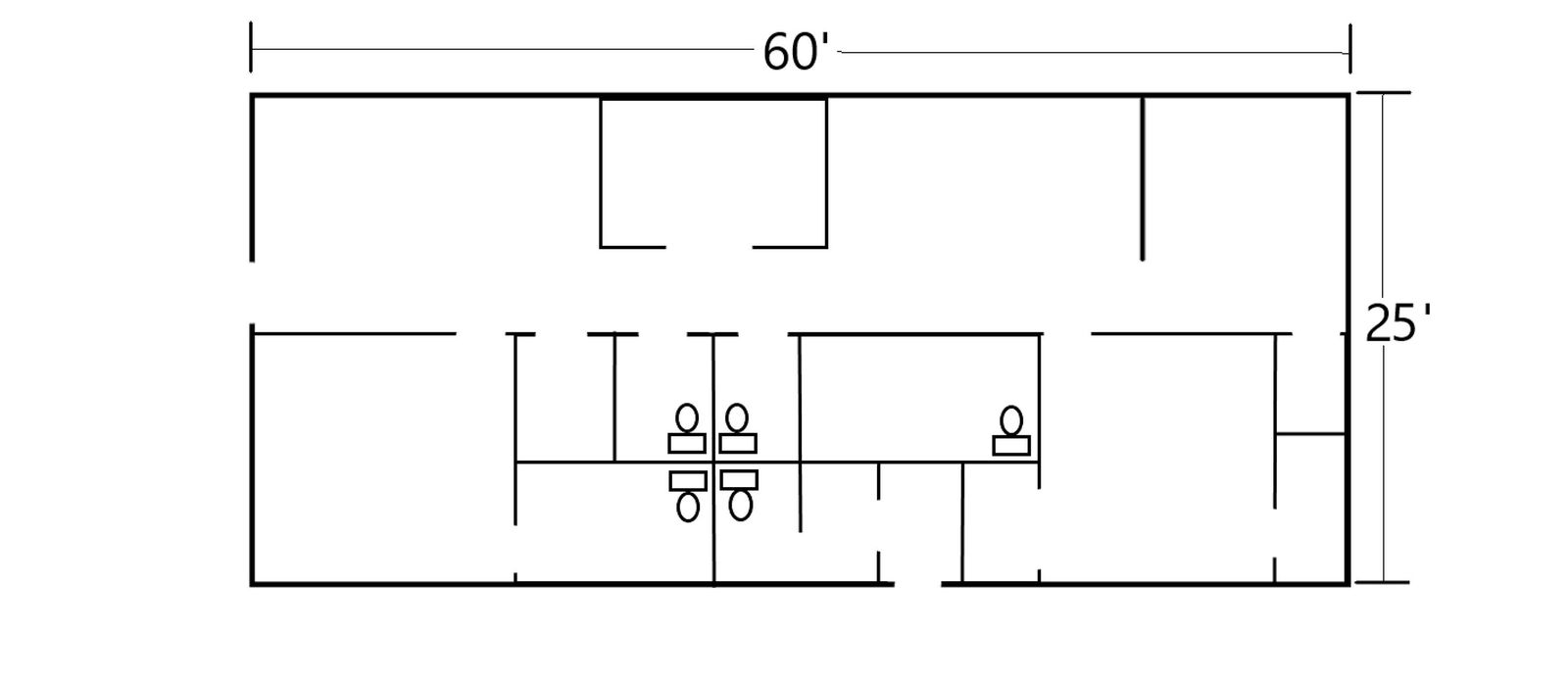
Building description
Approximately 1,320 SF of well-maintained office space is available in the Ogden Industrial Park. The suite includes two private offices, a small kitchenette, and three restrooms, one of which features a private shower. The space can be delivered furnished with cubicles, desks, office chairs, and a conference table, offering a turnkey solution for your business needs. 6 covered stalls of parking are provided with the lease. Some desks, chairs, cubicles, conference tables, etc., are available at a negotiable rate.
PRESENTED by Stockton & Robert Farnsworth with RE/MAX Associates
KSL Classifieds makes it easy to buy and sell with peace of mind. Check our safety tips and quickly report anything that doesn’t look right to keep your experience smooth and secure.











11 Days
39
0
$14.50

Note: KSL, its service providers, and the seller receive data from this message. See our Privacy Notice and TOU for details.
KSL Classifieds makes it easy to buy and sell with peace of mind. Check our safety tips and quickly report anything that doesn’t look right to keep your experience smooth and secure.








































































$14.50/SF/YR | Office | 1 space available | 1,320 SqFt
1673 W 2650 S, Ogden, UT 84401
Building description
Approximately 1,320 SF of well-maintained office space is available in the Ogden Industrial Park. The suite includes two private offices, a small kitchenette, and three restrooms, one of which features a private shower. The space can be delivered furnished with cubicles, desks, office chairs, and a conference table, offering a turnkey solution for your business needs. 6 covered stalls of parking are provided with the lease. Some desks, chairs, cubicles, conference tables, etc., are available at a negotiable rate.
PRESENTED by Stockton & Robert Farnsworth with RE/MAX Associates










