



























































4 Days
200
3
$8,000.00
Venmo
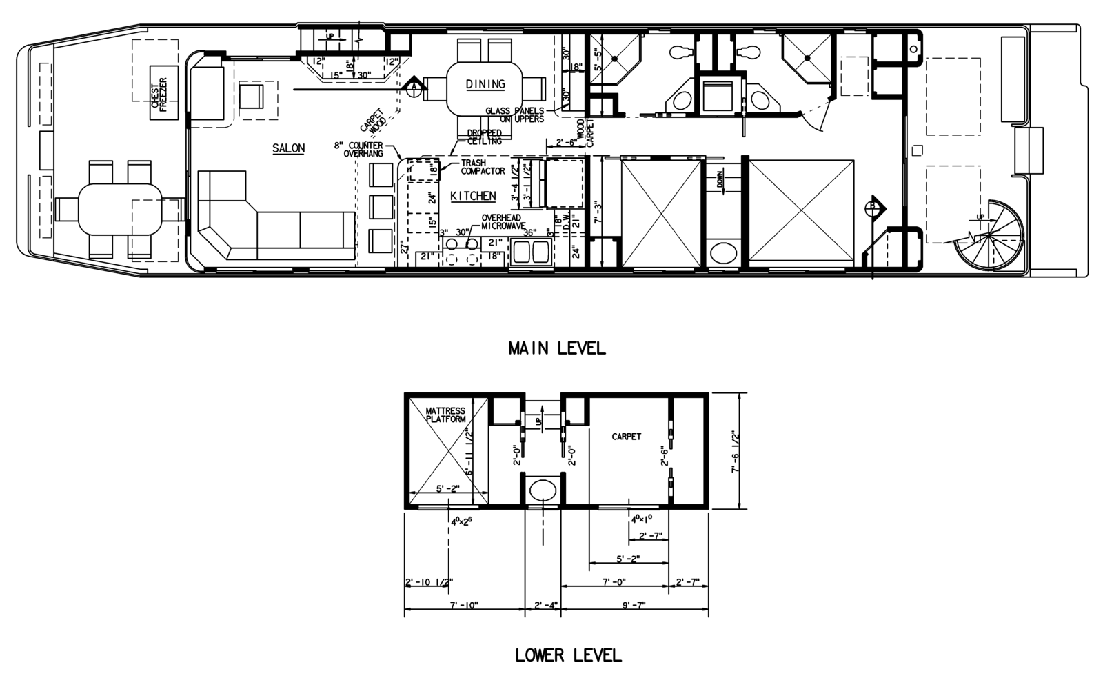
PayPalHouseboat manufacturer is Stardust. Dimensions are 72' by 16', 2 1/2 levels, aluminum monohull. 16 total shares with 14 current owners. A three-week owner has decided to get out of houseboating. So we have three weeks for sale:
Week #36: Aug 28-Sep 4, $9000
Week #37: Sep 4-Sep 11, $8000
Week #38: Sep 11-Sep 18, $7000
The weeks are being sold individually. Check-on/check-off is Friday to Friday. Annual dues are $2,500 per week.
On-season is June 5 through September 25. Everything before or after those dates is off-season, which is available to all owners on a first-come-first-serve basis at $150 per day.
Houseboat is at Bullfrog Marina in covered slip P-23.
Houseboat is well maintained with active management. For this age of houseboat, you won't find a houseboat in better condition. Experience piloting similar sized houseboats is required. We're interested in owners who would be actively engaged in helping to maintain the houseboat, have knowledge and experience in maintaining houseboats, and are comfortable troubleshooting issues.
No pets and no smoking allowed on the houseboat.
Features:
Two SRNE 10000W solar inverter chargers.
1224AH 48V (62.67 kWh) lithium battery bank for inverter system. All appliances (including the air conditioner) run off the inverter (2025).
6880W PV solar (2025).
15.0 kW SBEG rebuilt Westerbeke generator. Generator has about 1120 hours on it since rebuild (installed in spring 2021).
Twin Mercury Marine 383 MAG Stroker engines and MerCruiser Bravo II drives. Engines have about 953 hours on them (installed in 2016 with remanufactured motors).
3.5 ton AC and air handler that can run off the inverters (installed new 2025).
280 gallon main fuel tanks
150 gallon rear deck toy tank
100 gallon top deck toy tank
200 gallon fresh water tanks
200 gallon black water tanks
Commercial ice maker
Bow thruster
Washer and dryer
Trash compactor
Weber Genesis II E-410 Black 4-Burner Gas Grill
20-gallon electric hot water heater
Two bathrooms. Shower and head in each.
Four bedrooms. One king bed and three queen beds.
Sofa sleeper in salon area
12 sleeping pads on top-deck
Solid surface countertops
KSL Classifieds makes it easy to buy and sell with peace of mind. Check our safety tips and quickly report anything that doesn’t look right to keep your experience smooth and secure.












4 Days
200
3
$8,000.00
KSL Classifieds makes it easy to buy and sell with peace of mind. Check our safety tips and quickly report anything that doesn’t look right to keep your experience smooth and secure.




























































Venmo
PayPalHouseboat manufacturer is Stardust. Dimensions are 72' by 16', 2 1/2 levels, aluminum monohull. 16 total shares with 14 current owners. A three-week owner has decided to get out of houseboating. So we have three weeks for sale:
Week #36: Aug 28-Sep 4, $9000
Week #37: Sep 4-Sep 11, $8000
Week #38: Sep 11-Sep 18, $7000
The weeks are being sold individually. Check-on/check-off is Friday to Friday. Annual dues are $2,500 per week.
On-season is June 5 through September 25. Everything before or after those dates is off-season, which is available to all owners on a first-come-first-serve basis at $150 per day.
Houseboat is at Bullfrog Marina in covered slip P-23.
Houseboat is well maintained with active management. For this age of houseboat, you won't find a houseboat in better condition. Experience piloting similar sized houseboats is required. We're interested in owners who would be actively engaged in helping to maintain the houseboat, have knowledge and experience in maintaining houseboats, and are comfortable troubleshooting issues.
No pets and no smoking allowed on the houseboat.
Features:
Two SRNE 10000W solar inverter chargers.
1224AH 48V (62.67 kWh) lithium battery bank for inverter system. All appliances (including the air conditioner) run off the inverter (2025).
6880W PV solar (2025).
15.0 kW SBEG rebuilt Westerbeke generator. Generator has about 1120 hours on it since rebuild (installed in spring 2021).
Twin Mercury Marine 383 MAG Stroker engines and MerCruiser Bravo II drives. Engines have about 953 hours on them (installed in 2016 with remanufactured motors).
3.5 ton AC and air handler that can run off the inverters (installed new 2025).
280 gallon main fuel tanks
150 gallon rear deck toy tank
100 gallon top deck toy tank
200 gallon fresh water tanks
200 gallon black water tanks
Commercial ice maker
Bow thruster
Washer and dryer
Trash compactor
Weber Genesis II E-410 Black 4-Burner Gas Grill
20-gallon electric hot water heater
Two bathrooms. Shower and head in each.
Four bedrooms. One king bed and three queen beds.
Sofa sleeper in salon area
12 sleeping pads on top-deck
Solid surface countertops











