For Rent





















7 Days
127
4
$39.00/month

Note: KSL, its service providers, and the seller receive data from this message. See our Privacy Notice and TOU for details.
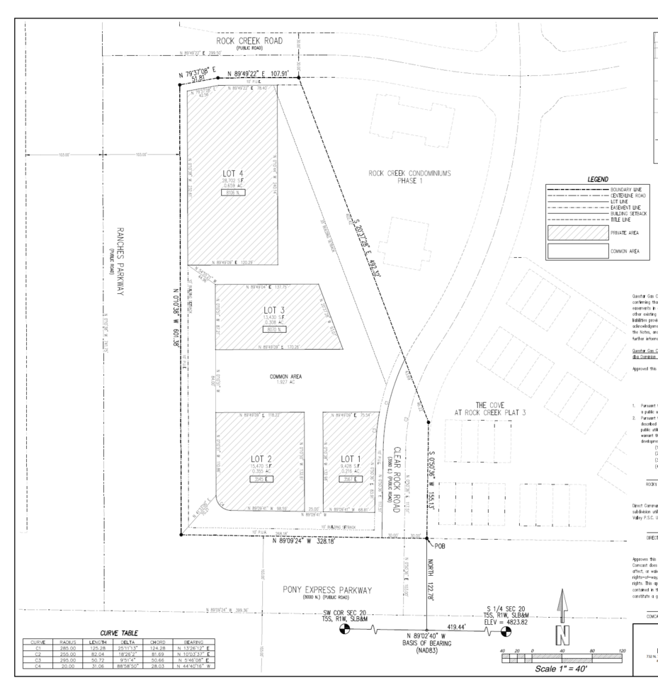
Welcome to Ranches Crossing, a to-be-built retail commercial site located in the booming Eagle Mountain retail neighborhood district. This development will feature roughly 25,600 sq ft of buildable retail space, multiple configurations available, with exclusivity. The property features ample parking spots. Tenant improvements are flexible, and there is plenty of room for signage. Don't miss this opportunity to secure a prime location for your business.
AADT on SR 73 is 11,000 & Pony Express is 18,000. This is a high traffic intersection in a rapidly growing market. Owners prefer a land lease, but are open to built-to-suit for national tenants.
Directly serves the greater Eagle Mountain area
Retail Zoning - Wide variety of uses permitted
New Construction – Build to suit
TI Allowance Negotiable
Big box, mid box, pads and shop space available for lease
Pads available for sale or lease
Site is located in one of the fastest growing areas of Utah
New Lighted Intersection
Pylon Signage Available
Residential and Commercial Growth
BTS or Lease Opportunities Available
Lease Rate: $42/SF
Land Lease Rate: $1.50-1.75/SF
Lease Type: Land - NNN - BTS
Number of Units: 3
Available SF: 3,400 - 13,750 SF
Pad 1: 56,282 SF | Pad 2:
29,830 SF | Pad 3: 49,050 SF
Lot Size: 3.74 Acres |
Pad 1: 1.3 AC | Pad 2: .68 AC | Pad 3: 1.12 AC
Parking Ratio: 7/1,000
Total Parking Stalls: 178
Lease Term: 3-10+ years
Available Date: To Be Built
KSL Classifieds makes it easy to buy and sell with peace of mind. Check our safety tips and quickly report anything that doesn’t look right to keep your experience smooth and secure.
Other items from this seller
7 Days
127
4
$39.00/month

Note: KSL, its service providers, and the seller receive data from this message. See our Privacy Notice and TOU for details.
KSL Classifieds makes it easy to buy and sell with peace of mind. Check our safety tips and quickly report anything that doesn’t look right to keep your experience smooth and secure.
For Rent





















Welcome to Ranches Crossing, a to-be-built retail commercial site located in the booming Eagle Mountain retail neighborhood district. This development will feature roughly 25,600 sq ft of buildable retail space, multiple configurations available, with exclusivity. The property features ample parking spots. Tenant improvements are flexible, and there is plenty of room for signage. Don't miss this opportunity to secure a prime location for your business.
AADT on SR 73 is 11,000 & Pony Express is 18,000. This is a high traffic intersection in a rapidly growing market. Owners prefer a land lease, but are open to built-to-suit for national tenants.
Directly serves the greater Eagle Mountain area
Retail Zoning - Wide variety of uses permitted
New Construction – Build to suit
TI Allowance Negotiable
Big box, mid box, pads and shop space available for lease
Pads available for sale or lease
Site is located in one of the fastest growing areas of Utah
New Lighted Intersection
Pylon Signage Available
Residential and Commercial Growth
BTS or Lease Opportunities Available
Lease Rate: $42/SF
Land Lease Rate: $1.50-1.75/SF
Lease Type: Land - NNN - BTS
Number of Units: 3
Available SF: 3,400 - 13,750 SF
Pad 1: 56,282 SF | Pad 2:
29,830 SF | Pad 3: 49,050 SF
Lot Size: 3.74 Acres |
Pad 1: 1.3 AC | Pad 2: .68 AC | Pad 3: 1.12 AC
Parking Ratio: 7/1,000
Total Parking Stalls: 178
Lease Term: 3-10+ years
Available Date: To Be Built
Other items from this seller